Sur le site historique de l’ancien couvent des Carmes, au cœur de Douai, la reconversion d’un ancien manège militaire en salle d’escrime signe l’alliance réussie entre patrimoine architectural et programmation sportive contemporaine.
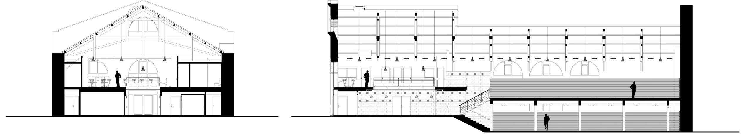
L’intervention, menée dans une logique de respect du bâti existant, valorise la charpente bois apparente d’origine, véritable colonne vertébrale du lieu.
Pensé pour être ouvert sur la ville, le projet favorise l’échange et la visibilité : la façade vitrée sur rue permet de voir l’ensemble des 14 pistes, incitant le public à franchir le seuil. À l’intérieur, la disposition des pistes et l’intégration d’un club-house en gradin renforcent l’idée d’un lieu fédérateur, dédié à la pratique comme au spectacle.
Cet équilibre entre contraintes sportives et respect du patrimoine a valu à cette réalisation d’être choisie comme lieu d’entraînement pour les Jeux Olympiques de Paris 2024.


