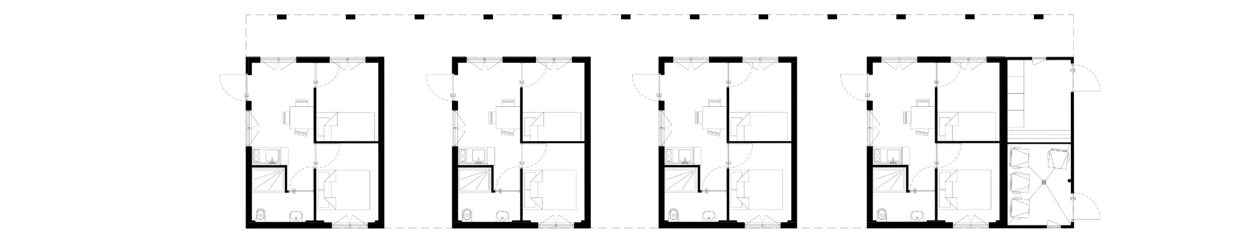
Suite à l’invasion russe de l’Ukraine, 6 millions de réfugiés ukrainiens ont trouvé refuge en Europe. Pour répondre à ce défi humanitaire majeur, un dispositif de logements temporaires a été conçu et réalisé dans un délai très contraint, en s’appuyant sur une logique de réemploi et de modularité. Le projet repose sur l’utilisation de containers maritimes usagés, transformés en unités d’habitation et regroupés sous une charpente bois couverte d’une toiture translucide équipée de chauffe-eau solaire.
Pensé à la fois comme une réponse immédiate à l’urgence et comme une expérimentation environnementale, l’ensemble combine sobriété constructive et efficacité énergétique. Chaque logement est séparé par une terrasse couverte, qui assure à la fois intimité, confort acoustique et espace extérieur protégé.
La structure est entièrement démontable et relocalisable, permettant au dispositif d’évoluer en fonction des besoins futurs. Cette réversibilité, associée au réemploi des containers et à l’usage du bois, inscrit le projet dans une approche responsable, où la construction d’urgence devient aussi une opportunité d’innovation durable.





